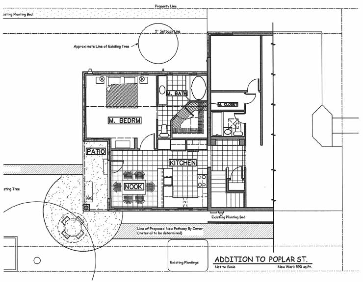
Poplar Street Addition



Back to Drawings & Plans