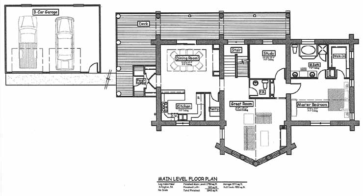
Log Cabin Main Level



Log Cabin Upper Level

Back to Drawings & Plans